2022 – Appartamento di F.A. a Francavilla al mare (CH)
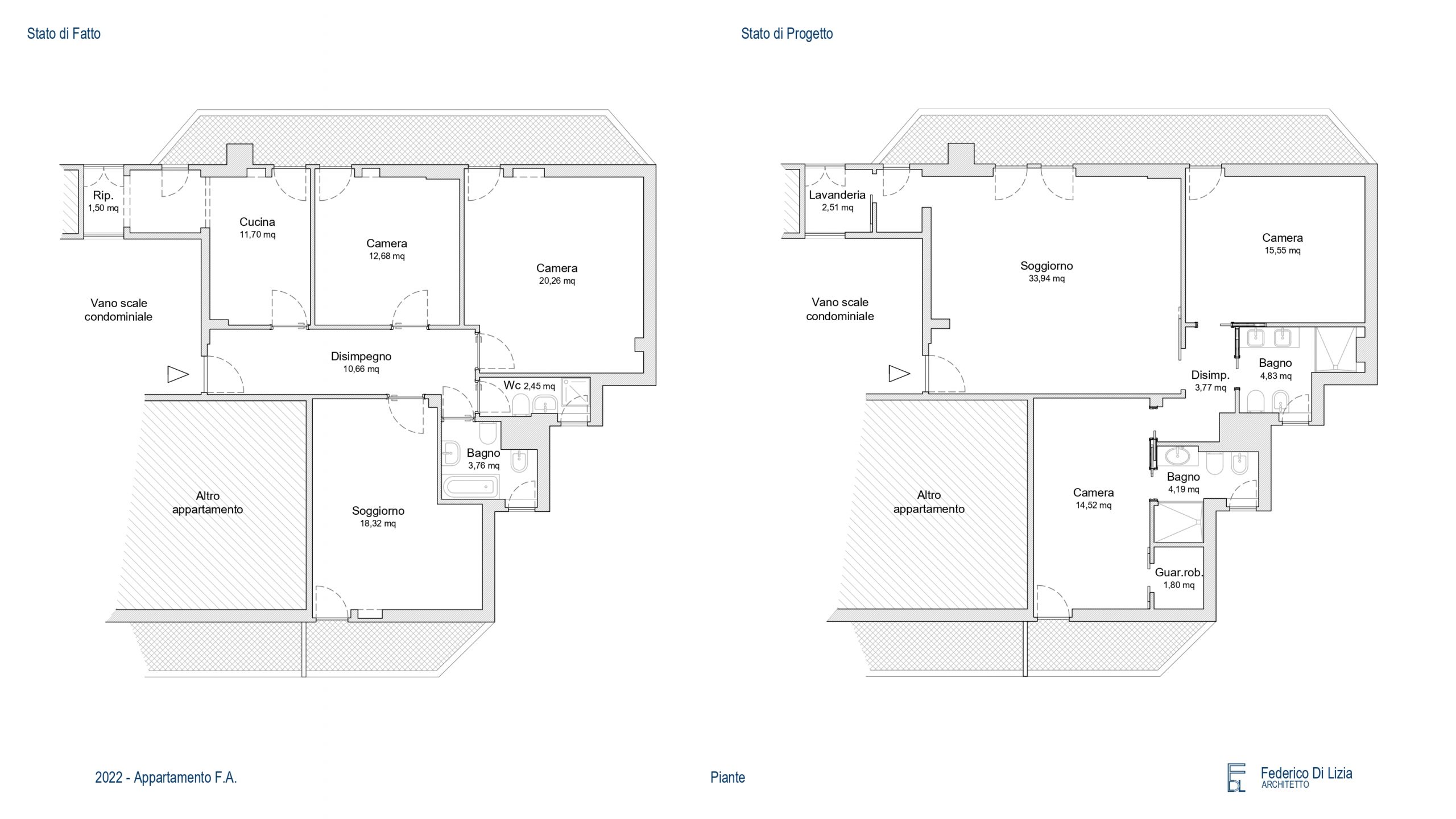
La situazione di partenza è un tipico appartamento degli anni 60; in cui troviamo una camera da letto sovradimensionata, tanto spazio occupato dal disimpegno e dei bagni molto sacrificati.
Le richieste del committente erano, oltre quella di riorganizzare in modo razionale gli spazi; quelle di realizzare un appartamento con sole porte scorrevoli, delle docce molto comode e una zona lavanderia.
